Home
About
projects
contact
matt bishop
Home
About
projects
contact
William Grant & Sons
NYC
CONCEPTUAL
BRAND CELEBRATION
inspiration
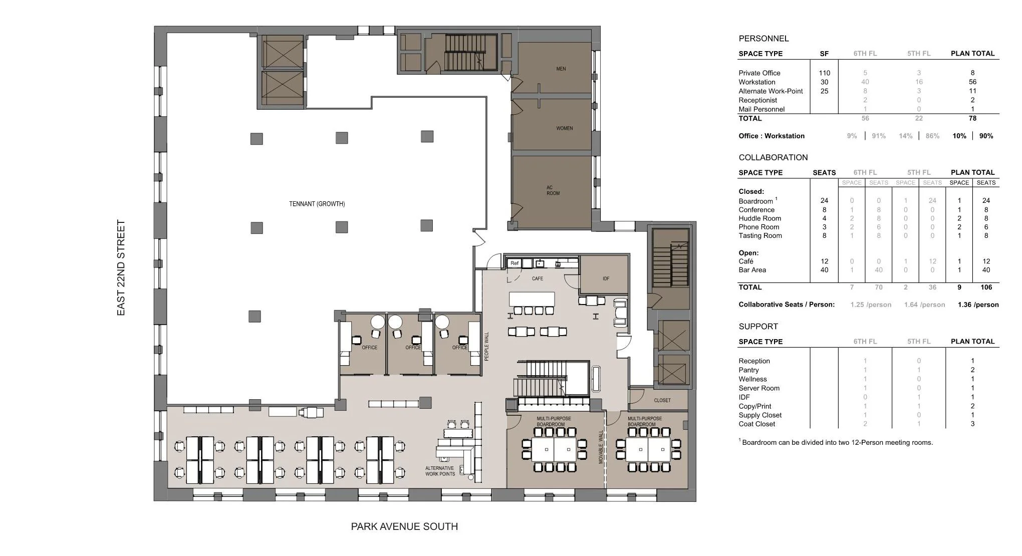
plans
View fullsize
View fullsize
View fullsize
View fullsize
View fullsize
rendering
back to top