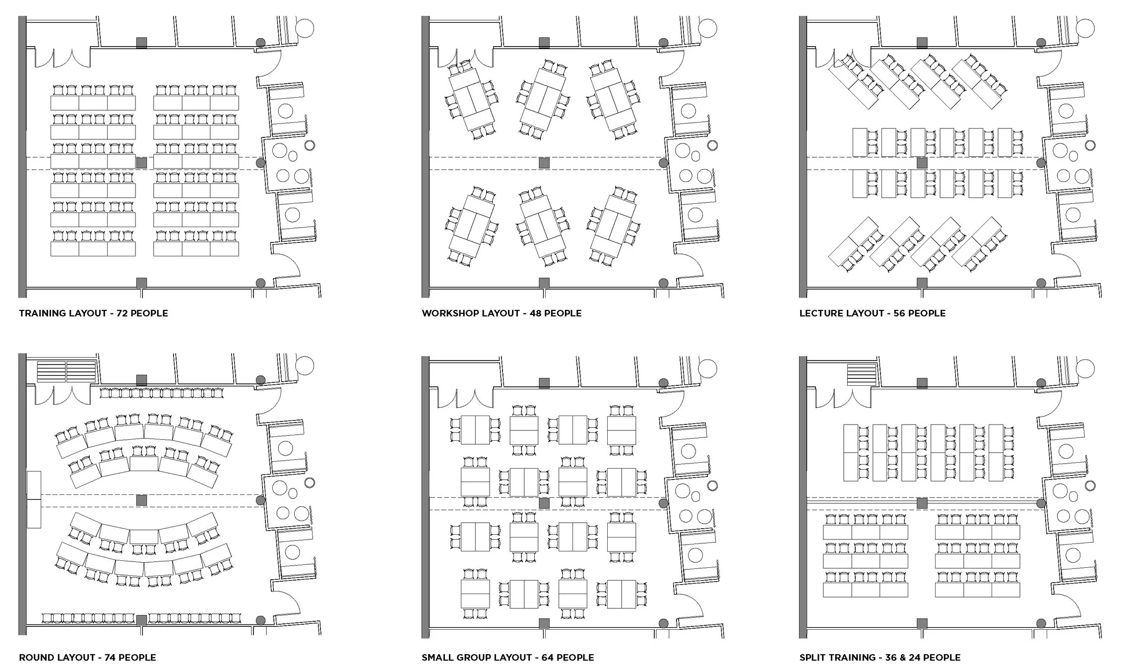
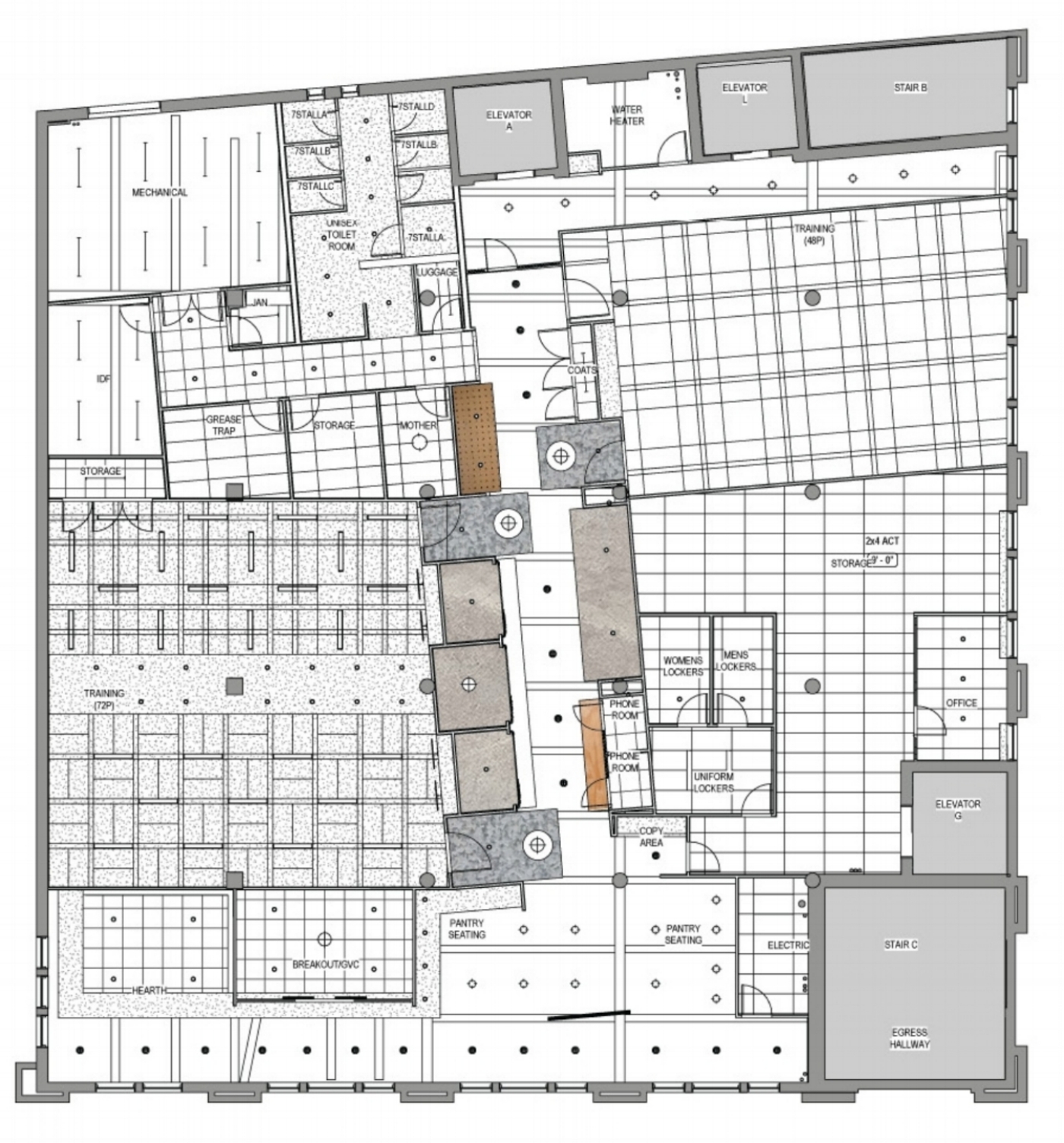
TRAINING CENTER
NYC
9,700 SF
GARAGE UNIVERSITY

concept

plans

renderings

photos